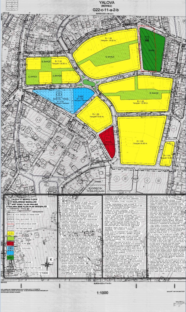
Yalova İli, Merkez İlçesi, Bağlarbaşı Mahallesinde Riskli Alan ilan edilen kısmına ilişkin 1/5000 Ölçekli Nazım İmar Planı ve 1/1000 Ölçekli Uygulama İmar Planı Değişikliği Teklifi 6306 sayılı Afet Riski Altındaki Alanların Dönüştürülmesi Hakkında Kanun ve İlgili Yönetmeliği uyarınca onaylanmış olup, 02.06.2016 tarihinde 30 (otuz) gün süre ile Müdürlüğümüz ilan panosunda ve internet sayfamızda eşzamanlı olarak askıya çıkarılmıştır.

